福州
关注楼盘

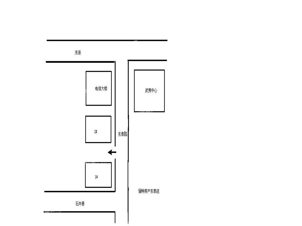
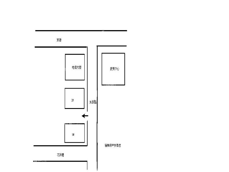
福建日报宿舍(东泰路44号)

当前位置:福州骊特集团网>福州小区>鼓楼区小区>五一广场小区>小区详情
< >
/
89795元/平米参考均价
  • 所在区域:鼓楼区
  • 占地面积:1500.00m²
  • 建造面积:4000m²
  • 物业公司:
  • 物业费率:40.00 (元/月)
  • 产权年限:70年
  • 福州市鼓楼区东泰路44号
福建日报宿舍(东泰路44号)房价走势
福建日报宿舍(东泰路44号)二手房查看更多
福建日报宿舍(东泰路44号)出租房查看更多
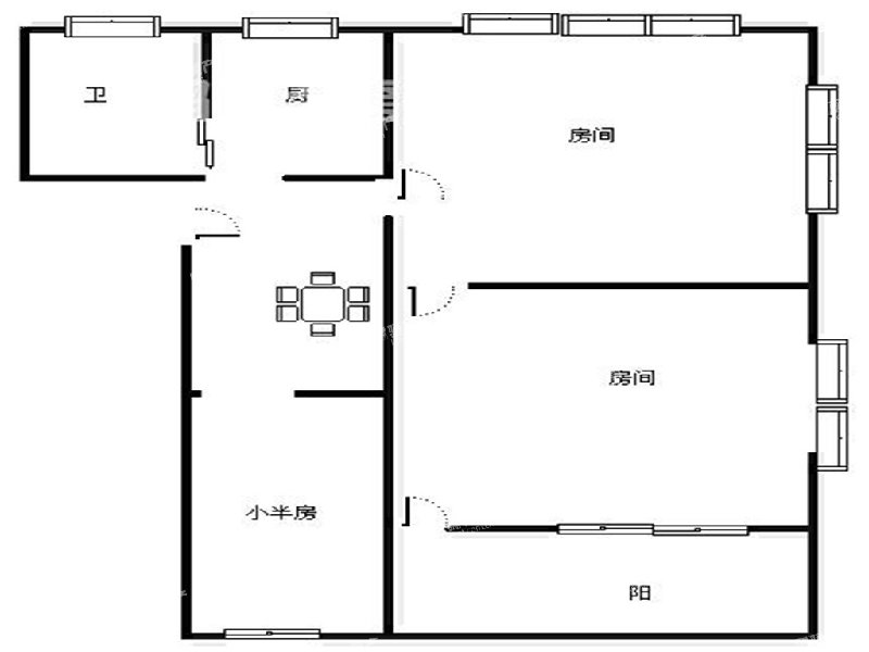
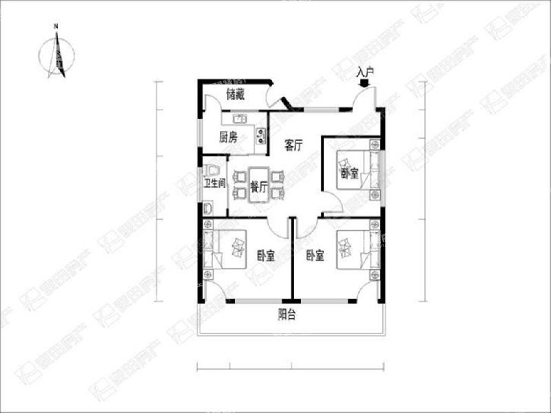
福建日报宿舍(东泰路44号)户型介绍
all全部户型(2) 2居室(1) 3居室(1)
福建日报宿舍(东泰路44号)周边配套
  • 公交
  • 地铁
  • 学校
  • 医院
  • 银行
  • 餐饮
  • 购物
鼓楼区小区
附近福州新房
鼓楼区二手房
返回顶部
/共
/共
请输入手机号
请输入登录密码

用户名或密码错误

找回密码
立即登录
还没有骊特集团网帐号?立即注册
  • *
  • *
  • *
  • *
请输入手机号
请输入短信验证码
请输入密码
请确认密码

错误提示

确认修改
想起密码?立即登录
  • *
  • *
  • *
  • *
  • *
  • *
请输入手机号
我的验证码
看不清?换一张!
请输入短信验证码
昵称
请输入密码
请确认密码

错误提示

《骊特集团用户使用协议》请先阅读并同意条款
立即注册
已有骊特集团网帐号?立即登录
恭喜您已注册成功!

尊敬的用户,您已注册成功骊特集团网,请点击登录

立即登录